照片查询列表
数据总数3245条
项目描述
所属项目
查 询
序号
项目描述
数据来源
照片列表
上传人员
1
锚索及围檩现场照片
临平新城星枉路保障性住房
陈佳珍
2
横梁与支撑钢筋架抱框加固
临平新城星枉路保障性住房
陈佳珍
3
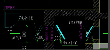
人防门吊钩
临平新城星枉路保障性住房
陈佳珍
4
剪力墙水平钢筋搭接及拉钩及附加钢筋
临平新城星枉路保障性住房
陈佳珍
5
负一层集水井支模
临平新城星枉路保障性住房
陈佳珍
6
人防门框墙支撑
临平新城星枉路保障性住房
陈佳珍
7
楼梯间下集水井
临平新城星枉路保障性住房
陈佳珍
8
泵房照片,构造柱,水沟,集水井
临平新城星枉路保障性住房
陈佳珍
9
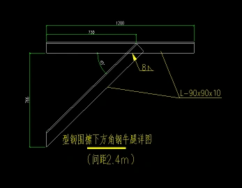
型钢围檩下方角钢牛腿
临平新城星枉路保障性住房
陈佳珍
10
型钢支撑与支护桩连接节点
临平新城星枉路保障性住房
陈佳珍
共有3245条记录
«
1
2
3
4
5
»